King County Micro Dwelling Units

HOME

WHY MODULAR?

CONTACT

STUART EMMONS

PRESS

RESIDENTIAL MODULES

PROJECTS

HOMELESSNESS

SHELTER MODULES

REPORTS

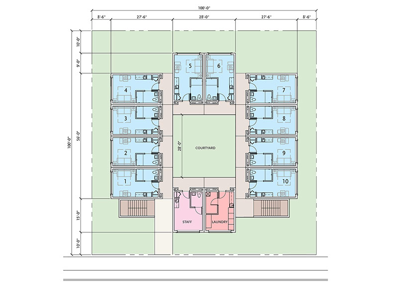
King County Micro Dwelling Units

20 units of modular studio ImHomeTooâ„¢ living units stacked two high, interconnected and supported by a laundry and staff office.

The 265 SF ImHomeToo studios have full baths and kitchenettes and are fully accessible. This project is designed as a prototype for subsequent projects of same and larger scale.

Seattle Times

8/2018

 

curbed

8/2018

King County

8/2018

Portland Tribune

9/2018

 

Project: King County Modular for Homeless

Project: King County Modular for Homeless

Project: King County Modular for Homeless

Project: King County Modular for Homeless

Profile & Project:

Stuart Emmons, King County Modular for Homeless