HOME
WHY MODULAR?
CONTACT
STUART EMMONS
PRESS
RESIDENTIAL MODULES
PROJECTS
HOMELESSNESS
SHELTER MODULES
REPORTS
MicroBlok
Exterior
Interior
Interior
Interior detail - Kitchenette
Interior detail - Front door
Interior detail - desk
Interior detail - Bath - sink
Interior detail - Bath - shower
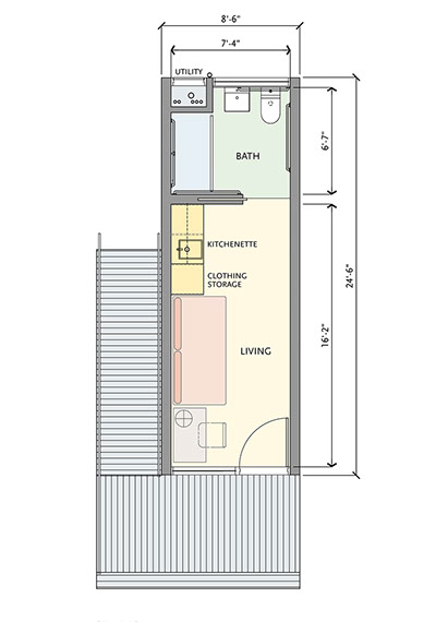
Floor Plan
Section rendering
Axonometric rendering
Axonometric rendering
<
>
MicroBlok is a 210 SF modular unit with living, bath, and a kitchenette The unit is designed for people experiencing homelessness as well as other types of residents. MicroBlok can stand on its own, or connect to other MicroBlok modular units in one story or two story configurations.
The MicroBlok building envelope is energy efficient and highly durable. The unit is designed to bring a generous amount of natural light and natural ventilation into the interior.
The goal of MicroBlok is to help move people into housing that is safe, warm, and dry, with dignity.
Stuart designed this unit while at a company named Blokable in 2017
Eagle Creek,
Columbia Gorge,
Oregon